LOADING

24 Berry Hill Avenue Waterdown, Ontario L8B 0E8

$799,900

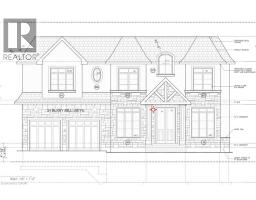
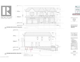
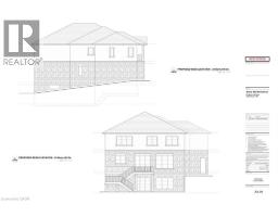
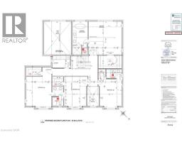
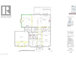
Stunning Lot in Waterdown (61.5' X 137')* Located steps from Waterdown’s downtown, this prime lot offers a unique development opportunity, nestled on a quiet closed avenue (cul-de-sac). With services available at the road and a full plan/permit package included, it’s ready for your custom dream home. Just minutes from parks, schools, shops, trails, and easy access to highways, it’s a rare chance to buy and hold or build now, as property values rise in this flourishing area. *Original Design* Development charges are already paid, and permits are approved for a single detached home of up to 4,000 sq ft with a walk-out basement. Architectural drawings are ready. *New Design* The new plans include a main floor bedroom with a walk-in closet and ensuite, ideal as an in-law suite. A separate spice kitchen adds convenience. The second floor features two master bedrooms with ensuites, plus a loft that can be converted into a fifth bedroom, opening to a covered balcony. Each bedroom has a walk-in closet and ensuite, ensuring privacy and comfort. This lot offers flexibility and potential, whether you’re ready to build or looking for an investment opportunity in a flourishing area. (id:46441)

Property Details

MLS® Number 40785817
Property Type Vacant Land
Amenities Near By Schools
Features Visual Exposure

Building

Basement Type None
Utility Water Municipal Water

Land

Access Type Highway Access
Acreage No
Land Amenities Schools
Sewer Municipal Sewage System
Size Depth 138 Ft
Size Frontage 62 Ft
Size Irregular 0.195
Size Total 0.195 Ac|under 1/2 Acre
Size Total Text 0.195 Ac|under 1/2 Acre
Zoning Description R1-2

Utilities

Cable Available
Natural Gas Available

https://www.realtor.ca/real-estate/29069490/24-berry-hill-avenue-waterdown

Interested?

Contact us for more information


Generating Captcha