3 Bedroom
2 Bathroom
1500 - 2000 sqft
Bungalow
Fireplace
Central Air Conditioning
Forced Air
$884,500
This rare, and tastefully designed bungalow is one of Stroh Homes last available lots on Avery Place! With 1700 square feet and 9 foot ceilings, this home is spacious and bright. This home features high quality finishes including wide plank engineered hardwood flooring and LED pot lights throughout. The floor plan is thoughtfully designed with luxury, open concept dining room and kitchen including granite countertops and soft close doors as well as a stunning great room with gas fireplace. Enjoy a luxurious primary suite with ensuite including double sinks and a walk-in closet. Two additional bedrooms on the main floor offer plenty of room for your family, guests, or to create a home office. An additional full piece bathroom completes the main floor. The basement offers additional living space with egress windows and bathroom rough in. There's also still plenty of room for a large rec room. Your new home also features a two car garage for convenience, walk up from the garage, and ample storage. Stroh Homes has years of experience and dedication to the trade. Built with high quality products and great attention to detail, Stroh Homes provides peace of mind knowing your home will be built to last. Ask about incentives such a custom finished basement at a discounted rate. (id:46441)
Property Details
|
MLS® Number
|
X12709500 |
|
Property Type
|
Single Family |
|
Community Name
|
Milverton |
|
Features
|
Sump Pump |
|
Parking Space Total
|
6 |
Building
|
Bathroom Total
|
2 |
|
Bedrooms Above Ground
|
3 |
|
Bedrooms Total
|
3 |
|
Age
|
New Building |
|
Amenities
|
Fireplace(s) |
|
Appliances
|
Water Heater |
|
Architectural Style
|
Bungalow |
|
Basement Development
|
Unfinished |
|
Basement Type
|
N/a (unfinished) |
|
Construction Style Attachment
|
Detached |
|
Cooling Type
|
Central Air Conditioning |
|
Exterior Finish
|
Brick |
|
Fire Protection
|
Smoke Detectors |
|
Fireplace Present
|
Yes |
|
Fireplace Total
|
1 |
|
Foundation Type
|
Poured Concrete |
|
Heating Fuel
|
Natural Gas |
|
Heating Type
|
Forced Air |
|
Stories Total
|
1 |
|
Size Interior
|
1500 - 2000 Sqft |
|
Type
|
House |
|
Utility Water
|
Municipal Water |
Parking
Land
|
Acreage
|
No |
|
Sewer
|
Sanitary Sewer |
|
Size Depth
|
120 Ft |
|
Size Frontage
|
50 Ft |
|
Size Irregular
|
50 X 120 Ft |
|
Size Total Text
|
50 X 120 Ft |
|
Zoning Description
|
R1-3-h4 |
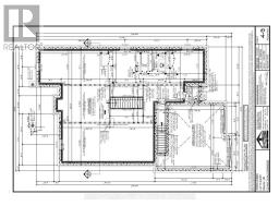
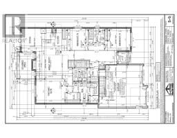
Rooms
| Level |
Type |
Length |
Width |
Dimensions |
|
Main Level |
Bedroom |
3.38 m |
3.26 m |
3.38 m x 3.26 m |
|
Main Level |
Bedroom |
3.38 m |
3.26 m |
3.38 m x 3.26 m |
|
Main Level |
Primary Bedroom |
3.99 m |
3.26 m |
3.99 m x 3.26 m |
|
Main Level |
Bathroom |
2.21 m |
2.47 m |
2.21 m x 2.47 m |
|
Main Level |
Bathroom |
5.06 m |
2.07 m |
5.06 m x 2.07 m |
|
Main Level |
Living Room |
4.27 m |
3 m |
4.27 m x 3 m |
|
Main Level |
Dining Room |
3.57 m |
3.11 m |
3.57 m x 3.11 m |
|
Main Level |
Kitchen |
3.57 m |
4.79 m |
3.57 m x 4.79 m |
|
Main Level |
Mud Room |
1.74 m |
1.46 m |
1.74 m x 1.46 m |
https://www.realtor.ca/real-estate/29265809/25-avery-place-perth-east-milverton-milverton