7 Bedroom
7 Bathroom
5000 - 100000 sqft
Fireplace
Inground Pool
Central Air Conditioning, Wall Unit, Air Exchanger
Forced Air
Waterfront On River
Acreage
$3,999,999
Set on an extraordinary 50-acre parcel just minutes from the heart of Creemore, this exceptional executive home offers refined living surrounded by a thriving natural ecosystem. With 700 feet of private frontage on the Noisy River, the property blends luxury, privacy, and environmental stewardship in a truly rare offering.Originally built in 1989 and fully renovated in 2013, the residence features heated floors throughout and a robust 400-amp electrical service. The home is anchored by a dream chef's kitchen, complete with stainless steel countertops and premium stainless steel appliances, designed for both everyday living and entertaining at scale.The layout includes seven spacious bedrooms, 5 each with ensuite.. Two dedicated dining areas and a stunning great room with a wood stove create warm, inviting spaces for gatherings large and small. A fully equipped gym supports an active lifestyle, while the lower level offers three additional bedrooms, ideal for extended family, in-laws, or income potential.Resort-style amenities elevate the experience, including a saltwater pool, sauna, hot tubs, and expansive outdoor living and recreation spaces designed to maximize enjoyment of the surrounding landscape.The land itself is exceptional:18 acres of open fields 32 acres of forest 14 acres of Ontario Managed Forest, offering valuable tax benefitsNo pesticides used on the land for over 10 years, supporting a rich and healthy ecosystemThe property includes multiple workshops, storage sheds, and a barn with concrete floors-perfect for hobbyists, agricultural use, or equipment storage.Located just 10 minutes from Devil's Glen, this estate offers four-season recreation, privacy, and convenience in one of the region's most desirable rural settings.A rare opportunity to own a legacy property where luxury living meets nature at its finest. (id:46441)
Property Details
|
MLS® Number
|
S12660608 |
|
Property Type
|
Agriculture |
|
Community Name
|
Rural Clearview |
|
Amenities Near By
|
Golf Nearby, Hospital, Ski Area |
|
Easement
|
Escarpment Control, None |
|
Equipment Type
|
Propane Tank |
|
Farm Type
|
Farm |
|
Features
|
Cul-de-sac, Wooded Area, Rolling, Waterway, Open Space, Flat Site, Guest Suite, In-law Suite, Sauna |
|
Parking Space Total
|
20 |
|
Pool Features
|
Salt Water Pool |
|
Pool Type
|
Inground Pool |
|
Rental Equipment Type
|
Propane Tank |
|
Structure
|
Barn |
|
Water Front Name
|
Noisy River |
|
Water Front Type
|
Waterfront On River |
Building
|
Bathroom Total
|
7 |
|
Bedrooms Above Ground
|
7 |
|
Bedrooms Total
|
7 |
|
Appliances
|
Water Heater, Dryer, Freezer, Oven, Hood Fan, Range, Stove, Washer, Window Coverings, Wine Fridge |
|
Basement Development
|
Finished |
|
Basement Features
|
Walk Out, Separate Entrance |
|
Basement Type
|
N/a (finished), N/a |
|
Construction Status
|
Insulation Upgraded |
|
Cooling Type
|
Central Air Conditioning, Wall Unit, Air Exchanger |
|
Exterior Finish
|
Hardboard, Stone |
|
Fireplace Present
|
Yes |
|
Fireplace Type
|
Woodstove |
|
Foundation Type
|
Poured Concrete |
|
Half Bath Total
|
2 |
|
Heating Fuel
|
Propane |
|
Heating Type
|
Forced Air |
|
Stories Total
|
2 |
|
Size Interior
|
5000 - 100000 Sqft |
|
Utility Power
|
Generator |
|
Utility Water
|
Drilled Well |
Parking
|
Detached Garage
|
|
|
Garage
|
|
|
R V
|
|
Land
|
Access Type
|
Public Road |
|
Acreage
|
Yes |
|
Land Amenities
|
Golf Nearby, Hospital, Ski Area |
|
Sewer
|
Septic System |
|
Size Depth
|
2702 Ft |
|
Size Frontage
|
924 Ft |
|
Size Irregular
|
924 X 2702 Ft |
|
Size Total Text
|
924 X 2702 Ft|25 - 50 Acres |
|
Zoning Description
|
Ftp/rtp |
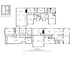
Rooms
| Level |
Type |
Length |
Width |
Dimensions |
|
Second Level |
Library |
6.77 m |
3.75 m |
6.77 m x 3.75 m |
|
Second Level |
Laundry Room |
1.22 m |
1.22 m |
1.22 m x 1.22 m |
|
Second Level |
Primary Bedroom |
6.5 m |
3.94 m |
6.5 m x 3.94 m |
|
Second Level |
Bedroom 2 |
2.97 m |
4.5 m |
2.97 m x 4.5 m |
|
Second Level |
Bedroom 3 |
2.97 m |
1.65 m |
2.97 m x 1.65 m |
|
Second Level |
Bedroom 4 |
4.37 m |
2.97 m |
4.37 m x 2.97 m |
|
Lower Level |
Bedroom 5 |
5.44 m |
4.02 m |
5.44 m x 4.02 m |
|
Lower Level |
Kitchen |
2.46 m |
3.1 m |
2.46 m x 3.1 m |
|
Lower Level |
Bedroom |
3.81 m |
2.99 m |
3.81 m x 2.99 m |
|
Lower Level |
Bedroom |
3.23 m |
3.96 m |
3.23 m x 3.96 m |
|
Lower Level |
Bathroom |
3.94 m |
1.5 m |
3.94 m x 1.5 m |
|
Lower Level |
Media |
11.31 m |
4.91 m |
11.31 m x 4.91 m |
|
Lower Level |
Laundry Room |
3.81 m |
3.47 m |
3.81 m x 3.47 m |
|
Main Level |
Great Room |
6.83 m |
7.04 m |
6.83 m x 7.04 m |
|
Main Level |
Bathroom |
2.44 m |
2.01 m |
2.44 m x 2.01 m |
|
Main Level |
Bathroom |
1.5 m |
1.8 m |
1.5 m x 1.8 m |
|
Main Level |
Kitchen |
4.04 m |
3.99 m |
4.04 m x 3.99 m |
|
Main Level |
Family Room |
6.6 m |
4.01 m |
6.6 m x 4.01 m |
|
Main Level |
Exercise Room |
6.16 m |
378 m |
6.16 m x 378 m |
|
Main Level |
Dining Room |
9.3 m |
3.91 m |
9.3 m x 3.91 m |
|
Main Level |
Eating Area |
2.92 m |
4.01 m |
2.92 m x 4.01 m |
Utilities
https://www.realtor.ca/real-estate/29214186/3476-garden-of-eden-road-clearview-rural-clearview