LOADING

401 Main Street Port Dover, Ontario N0A 1N0

2015 sqft

$899,900

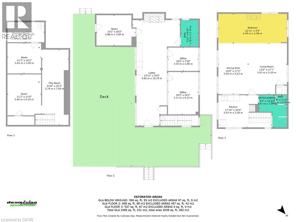
This professional office building in the heart of Port Dover, offers unparalleled visibility in a high-traffic area with exposure on two streets. Its prime location makes it an ideal opportunity for businesses looking to maximize accessibility and brand presence. Live upstairs and lease the main floor. The property features a spacious studio apartment, perfect for owner occupancy or rental income, and a huge outdoor composite deck that provides a great space for meetings, breaks, or entertaining. With eight dedicated parking spaces, convenience is guaranteed for both staff and clients—an asset rarely found in such a sought-after location. With its versatile layout, excellent amenities, and unbeatable positioning, this property is ready to take your business to the next level. Don’t miss out on this incredible opportunity—check out the virtual tour & schedule a viewing today! (id:46441)

Property Details

MLS® Number 40797987
Property Type Other
Amenities Near By Public Transit
Equipment Type Other, Water Heater
Parking Space Total 5
Rental Equipment Type Other, Water Heater

Building

Basement Type Full
Stories Total 2
Size Exterior 2015.0000
Size Interior 2015 Sqft
Utility Water Municipal Water

Land

Access Type Road Access
Acreage No
Land Amenities Public Transit
Sewer Municipal Sewage System
Size Depth 72 Ft
Size Frontage 66 Ft
Size Total Text Under 1/2 Acre
Zoning Description Cbd

Utilities

Electricity Available

https://www.realtor.ca/real-estate/29292913/401-main-street-port-dover

Interested?

Contact us for more information


Generating Captcha