LOADING

43 Talbot Street E Cayuga, Ontario N0A 1E0

45000 sqft
Acreage

$7.75 / ft2

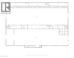
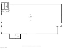
Prime opportunity to lease a high-exposure 45,000 sq. ft. Industrial/Commercial facility ideally located in the heart of Cayuga. Excellent street visibility on a main thoroughfare. The building’s expansive footprint is ideal for manufacturing, warehousing, distribution, or large-scale commercial operations. Featuring multiple bay doors, loading dock, ample power supply, and 14’ high ceilings, this versatile space is designed to accommodate a wide range of business uses. The property also includes generous on-site parking, easy transport access, and functional office and administrative areas. Opportunity to be divided into separate units. Strategically located with easy access to major routes connecting to Hamilton, the Niagara region, and the GTA, this site offers convenience, exposure, and flexibility. Whether you’re expanding your operation or establishing a new headquarters, this property provides the space and presence to make an impact. (id:46441)

Property Details

MLS® Number 40782343
Property Type Other
Communication Type High Speed Internet
Community Features High Traffic Area

Building

Basement Type None
Exterior Finish Steel
Stories Total 1
Size Exterior 45000.0000
Size Interior 45000 Sqft
Utility Water Municipal Water

Land

Access Type Road Access
Acreage Yes
Sewer Municipal Sewage System
Size Depth 236 Ft
Size Frontage 175 Ft
Size Total Text 5 - 9.99 Acres
Zoning Description Cs/cd

Utilities

Electricity Available
Telephone Available

https://www.realtor.ca/real-estate/29069508/43-talbot-street-e-cayuga

Interested?

Contact us for more information


Generating Captcha