LOADING

433 Northern Avenue Delhi, Ontario N4B 2R7

2 Bedroom 1 Bathroom 1748 sqft
Bungalow Central Air Conditioning Forced Air

$524,900

Welcome to 433 Northern Avenue in the heart of Delhi, a solid brick bungalow on a spacious corner lot offering comfort, updates, and move-in-ready living in a quiet, established neighbourhood. This well-maintained home features over 1,700 sq ft of finished living space with a bright main floor layout, generous room sizes, and a partially finished basement providing additional living and recreation areas. The large living room and dining area flow easily into the functional kitchen, while two spacious main-floor bedrooms offer comfortable everyday living. The lower level adds valuable extra space with a renovated basement living room (2023), perfect for family movie nights, hobbies, or a relaxed retreat. Buyers will appreciate the extensive list of recent mechanical and exterior updates, including furnace and A/C (2020), front door (2020), soffit, fascia and eavestroughs (2022), garage door (2023), windows (2023), and new water heater (2025), providing peace of mind for years to come. Outside, the detached garage and private driveway offer convenient parking and storage, while the 65' x 125' corner lot provides excellent outdoor space with room to garden, play, or simply enjoy the yard. Located close to schools, parks, shopping, recreation facilities, and all of Delhi’s everyday amenities, this home is ideal for first-time buyers, downsizers, or anyone seeking a solid home in a welcoming community. Immediate possession available. (id:46441)

Property Details

MLS® Number 40807000
Property Type Single Family
Amenities Near By Golf Nearby, Park, Place Of Worship, Playground, Schools, Shopping
Communication Type High Speed Internet
Community Features Quiet Area, Community Centre, School Bus
Equipment Type Water Heater
Features Corner Site
Parking Space Total 3
Rental Equipment Type Water Heater

Building

Bathroom Total 1
Bedrooms Above Ground 2
Bedrooms Total 2
Appliances Dishwasher, Dryer, Microwave, Refrigerator, Stove, Washer
Architectural Style Bungalow
Basement Development Partially Finished
Basement Type Full (partially Finished)
Constructed Date 1957
Construction Style Attachment Detached
Cooling Type Central Air Conditioning
Exterior Finish Brick, Shingles
Fixture Ceiling Fans
Foundation Type Block
Heating Fuel Natural Gas
Heating Type Forced Air
Stories Total 1
Size Interior 1748 Sqft
Type House
Utility Water Municipal Water

Parking

Detached Garage

Land

Acreage No
Land Amenities Golf Nearby, Park, Place Of Worship, Playground, Schools, Shopping
Sewer Municipal Sewage System
Size Depth 125 Ft
Size Frontage 65 Ft
Size Irregular 0.19
Size Total 0.19 Ac|under 1/2 Acre
Size Total Text 0.19 Ac|under 1/2 Acre
Zoning Description R1

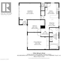
Rooms

Level Type Dimensions
Basement Utility Room 11'1'' x 22'10''
Basement Other 11' x 14'7''
Basement Other 13'11'' x 19'1''
Basement Recreation Room 20'9'' x 18'3''
Main Level 4pc Bathroom Measurements not available
Main Level Bedroom 10'6'' x 10'0''
Main Level Primary Bedroom 17'6'' x 13'9''
Main Level Kitchen 14'6'' x 13'3''
Main Level Dining Room 11'1'' x 6'5''
Main Level Living Room 17'3'' x 13'3''

Utilities

Electricity Available
Natural Gas Available
Telephone Available

https://www.realtor.ca/real-estate/29397018/433-northern-avenue-delhi

Interested?

Contact us for more information


Generating Captcha