1 Bedroom
1 Bathroom
980 sqft
Central Air Conditioning
Landscaped
$1,400 Monthly
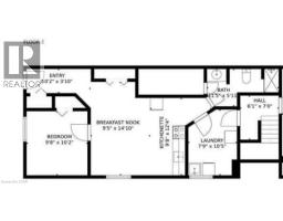
Welcome to this bright and well-maintained lower-level one-bedroom unit, offering comfortable and private living in a quiet residential setting. Featuring a completely self-contained layout, this spacious suite provides an ideal space for a single professional or couple seeking convenience and independence. The unit includes a functional kitchen with dining area, a generous living space, and a well-sized bedroom designed for everyday comfort. Residents enjoy access to shared laundry facilities, while the separate walk-up entrance ensures privacy and easy access without shared interior living spaces. Natural light and a thoughtful layout make the home feel welcoming and practical. Tenants also benefit from shared access to a private, fully fenced backyard, perfect for enjoying outdoor space. Please note that the shed is not included with this unit and is not available for tenant use. Located close to amenities, transit routes, and everyday essentials, this unit combines comfort, privacy, and accessibility in a desirable neighbourhood setting. (id:46441)
Property Details
|
MLS® Number
|
40819128 |
|
Property Type
|
Single Family |
|
Amenities Near By
|
Golf Nearby |
|
Community Features
|
Industrial Park |
|
Features
|
Southern Exposure, Conservation/green Belt, Industrial Mall/subdivision |
|
Parking Space Total
|
1 |
Building
|
Bathroom Total
|
1 |
|
Bedrooms Below Ground
|
1 |
|
Bedrooms Total
|
1 |
|
Appliances
|
Dryer, Microwave, Refrigerator, Stove, Washer |
|
Basement Type
|
None |
|
Construction Style Attachment
|
Attached |
|
Cooling Type
|
Central Air Conditioning |
|
Exterior Finish
|
Brick Veneer, Concrete |
|
Heating Fuel
|
Natural Gas |
|
Stories Total
|
1 |
|
Size Interior
|
980 Sqft |
|
Type
|
Apartment |
|
Utility Water
|
Municipal Water |
Land
|
Access Type
|
Highway Access, Highway Nearby |
|
Acreage
|
No |
|
Land Amenities
|
Golf Nearby |
|
Landscape Features
|
Landscaped |
|
Sewer
|
Municipal Sewage System |
|
Size Depth
|
112 Ft |
|
Size Frontage
|
29 Ft |
|
Size Irregular
|
0.07 |
|
Size Total
|
0.07 Ac|unknown |
|
Size Total Text
|
0.07 Ac|unknown |
|
Zoning Description
|
Res-4 |
Rooms
| Level |
Type |
Length |
Width |
Dimensions |
|
Basement |
3pc Bathroom |
|
|
Measurements not available |
|
Basement |
Primary Bedroom |
|
|
12'4'' x 11'8'' |
|
Basement |
Kitchen/dining Room |
|
|
16'6'' x 13'6'' |
https://www.realtor.ca/real-estate/29578866/87a-tamvale-crescent-kitchener